CONTATTO
UFFICIO
SOCIAL
Via Confalone 7
Napoli
80136
Falanga e Morra architetti
P. I.: 02887420640
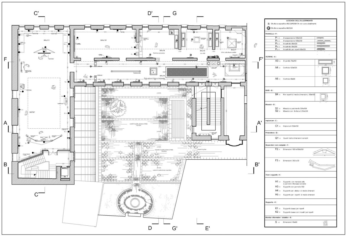
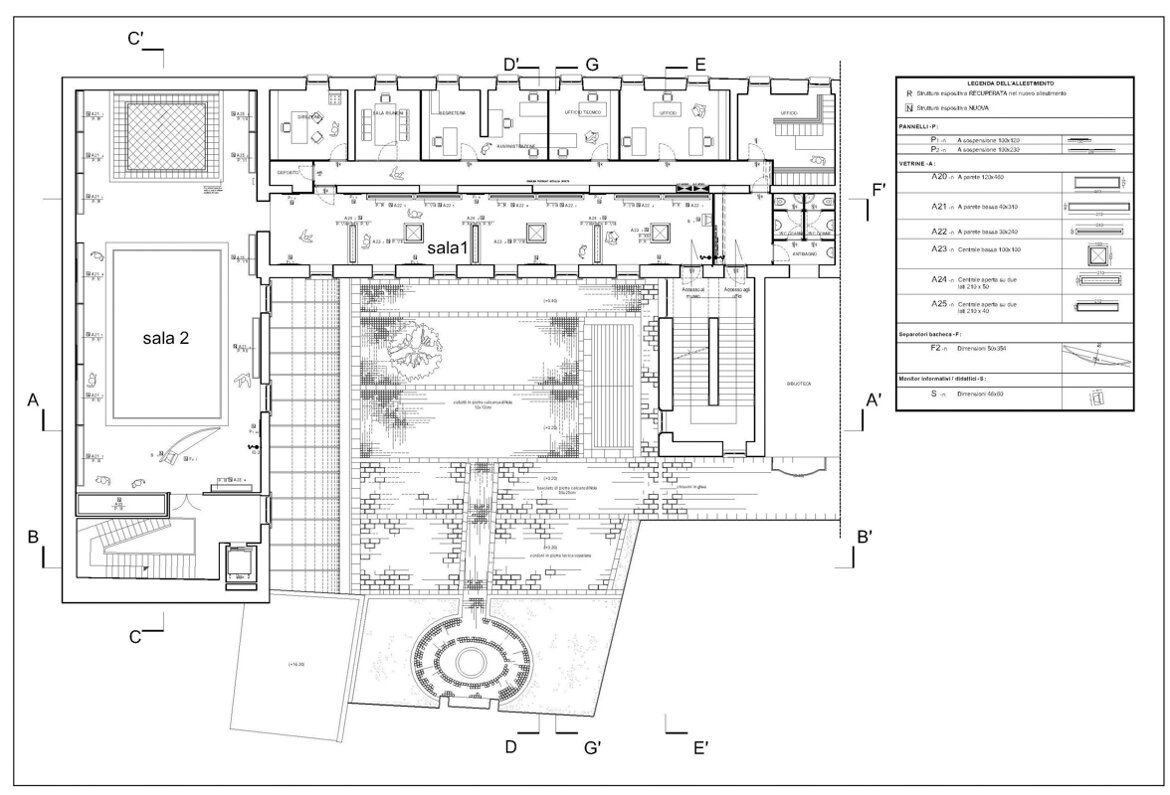
Parco archeologico – ambientale urbano, Napoli.
Recupero e rifunzionalizzazione della grotta romana.
1998


























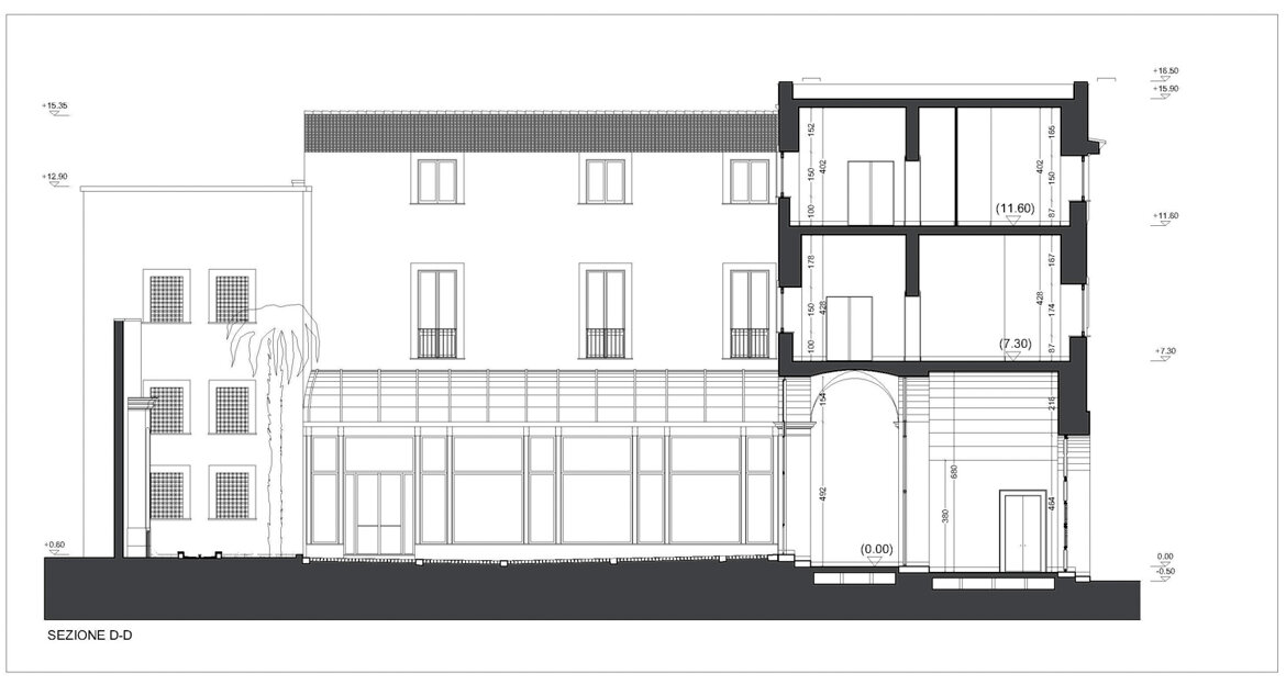
Nola.
Restauro e rifunzionalizzazione dell'edificio "ex convento delle Canossiane".
1999




















































Napoli.
2006
Restauro e consolidamento delle facciate.









Ercolano.
Struttura di protezione degli scavi di Villa dei Papiri.
2004






















Aeroporto Internazionale di Napoli.
2017
























Area arecheologica di Pompei
2021










Napoli.
Memoriale per le vittime innocenti della Camorra.
2021
















Aeroporto Internazionale di Napoli.
2019









Cuma.
Consolidamento e rifunzionalizzazione della galleria.
2016
























CONTATTO
UFFICIO
SOCIAL
Via Confalone 7
Napoli
80136
Falanga e Morra architetti
P. I.: 02887420640